北弘产品

咨询热线:
13931762407
邮件: 125854791@qq.com
电话:0317-8285333
地址: 河北-泊头市
-
产品详情
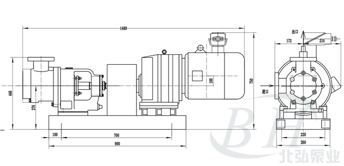
NYP液态松香输送泵具有内齿的主动齿带动内转子在全封闭的泵体内作同方向转动,泵壳和月牙板使吸入口和排出口隔开,转动时,在吸入口形成负压,液体被吸入,被转子带到排出口,受压排出泵体,完成了液体的输送。 NYP液态松香输送泵有泵体、泵盖、安全阀部分、主动轴、内、外转子、支座、轴承等部分组成。泵装置由泵、电机和底座组成。泵和电机固定安装在底座上,传动方式有皮带传动和联轴器直联两种方式。 选择NYP液态松香输送泵时应该注意泵所输送的具体粘度、工作温度、介质比重、介质成分等等,只有更好的了解NYP液态松香输送泵所输送的介质情况才能更好的选择所需要的NYP液态松香输送泵产品 NYP不锈钢高粘度泵典型应用 NYP高粘度泵结构 NYP高粘度保温泵整机安装尺寸图 NYP保温树脂泵性能参数表 轴功率(kw)流量(L/min)北弘泵业 0-1.2(Mpa) 松香 86-960(r/m) 耐腐蚀 0.75-110(kw) 电动 0.2-160(m3/h) 0-250℃ 25-200mm
NYP液态松香输送泵是一种容积式内转子泵。这种类型的泵自吸性能强,适用于输送不含固体颗粒和纤维的粘稠液体,甚至是半固体状态的液体,高输送粘度达到 3*10 5 厘泊。具有体积小、重量轻、脉动小、噪音低、运转平稳、寿命长等优点。
NYP液态松香输送泵使用时注意事项
1、进、出口管路的管径必须和泵保持一致;
2、设计管路时应尽量减少弯头,且弯头角度不宜过小,进口管线不宜过长,以免影响自吸。
3、启动前每个注油杯都应家润滑油,且每天加油一次。
4、泵在工作前应该点动启动电机,观察转向是否和规定转向一致。
5、开机后观察运转是否正常,如有不正常噪音、特殊振动或温升过高等情况,应停机检查。
6、注意皮带松紧是否恰当,每半年调整一次。
选择NYP液态松香输送泵时应该注意事项
一、必须了解NYP液态松香输送泵所输送的介质粘度。因为介质粘度的高低直接影响到选择NYP液态松香输送泵的转速。
二、了解NYP液态松香输送泵所输送介质的性质,例如有没有腐蚀性。
三、NYP液态松香输送泵所输送的介质浓度多少、比重多少。
四、NYP液态松香输送泵所输送的介质。
五、NYP液态松香输送泵输送的介质常温下是否结晶或凝固。
六、NYP液态松香输送泵所输送的介质是否有悬浮物。
七、NYP液态松香输送泵所输送介质受温度变化情况。
八、NYP液态松香输送泵所输送介质的润滑性、清洁度、腐蚀性等。
九、NYP液态松香输送泵要求进口压力及出口压力和安装高度。
十、NYP液态松香输送泵使用场合的防爆要求。
十一、我公司对特殊工况条件可以根据用户要求单独设计制作NYP液态松香输送泵。
NYP高粘度泵工作原理
NYP高粘度泵核心细节型号 通径mm 理论排量L/100rev 粘度cSt 转速r/min 压差(MPa) 连接形式 0.4 0.6 0.8 1.0 NYP0.78 15 0.78 20 1390 0.17/9.3 0.23/9.0 0.28/8.8 0.32/8.6 G1/2" 60 1390 0.18/9.5 0.24/9.2 0.28/9.0 0.33/8.9 200 1390 0.31/10.4 0.35/10.2 0.39/10.0 0.43/9.9 600 1390 0.39/10.4 0.44/10.3 0.48/10.3 0.52/10.2 2000 910 0.23/6.8 0.27/6.8 0.30/6.8 0.33/6.7 6000 720 0.24/5.4 0.31/6.1 0.30/6.8 0.40/6.8 NYP2.3 25 2.3 20 1400 0.38/28.4 0.49/27.5 G1" 60 1400 0.59/29.2 0.65/28.8 200 1400 0.61/30.0 0.72/29.6 600 1400 0.92/31.9 0.96/31.7 2000 910 0.61/19.9 0.68/19.7 6000 720 0.77/16.32 0.83/16.2 NYP3.6 40 3.6 20 1450 0.69/46.7 0.94/45.9 1.18/45 1.44/43.4 法兰 60 1450 0.81/47.5 1.09/46.7 1.37/45.9 1.57/44.7 200 1450 1.06/49.7 1.31/49.2 1.56/48.8 1.79/47.3 600 1450 1.45/49.9 1.61/49.6 1.77/49.3 1.93/49 2000 960 1.28/34.3 1.41/33.8 1.54/33.7 1.65/33.6 6000 640 1.08/23.0 1.18/22.9 1.28/22.9 1.37/22.8 20000 583 1.22/20.5 1.24/20.4 1.25/20.4 1.38/20.3 60000 455 0.84/16.3 0.91/16.2 0.98/16.1 1.01/16 NYP7.0 40 7.0 20 1450 1.36/98.1 1.8/96 2.0/94.7 2.4/93 螺纹 60 1450 1.45/99 1.9/97 2.2/96.4 2.6/95 200 1450 1.62/99.8 2.0/98 2.3/97.5 2.7/97 600 960 1.4/62 1.6/65 1.8/44 2.0/64 2000 960 1.8/67 2.0/66 2.3/65 2.6/65 6000 640 1.5/44.5 1.7/44 1.8/44 2.0/44 20000 583 1.6/40.5 1.9/40 2.1/40 2.2/40 60000 455 1.46/31.5 1.8/31 1.9/31 2.0/31 NYP24 50 24 20 720 1.8/165 2.3/161 2.8/158 3.4/155 法兰 60 720 2.0/166 2.6/164 3.1/162 3.7/158 200 610 1.9/143 2.5/141 3.0/139 3.5/136 600 541 2.1/127 2.6/125 3.0/124 3.5/122 2000 475 2.2/112 2.6/111 2.9/110 3.4/109 6000 357 2.0/85 2.3/84 2.6/83 2.9/83 20000 303 1.9/72 2.2/72 2.4/72 2.6/71 60000 228 1.6/54 1.8/54 2.0/54 2.3/54 NYP52 50 52 20 720 4.3/362 5.8/355 6.9/348 8.1/340 螺纹 60 720 4.7/364 6.2/358 7.3/352 7.5/346 200 610 4.6/309 5.9/304 6.9/300 8.0/294 600 541 4.9/275 6.0/271 6.8/268 7.8/264 2000 475 5.0/243 5.9/238 6.6/237 7.6/235 6000 357 4.1/184 4.9/182 5.3/181 6.2/180 20000 303 3.8/157 4.6/156 5.1/155 5.6/155 60000 228 3.1/119 3.7/118 4.0/118 4.5/118 NYP80 80 80 20 615 5.2/471 6.9/461 8.5/451 10.0/433 法兰 60 615 5.5/474 7.2/465 8.8/457 10.5/448 200 544 5.7/421 7.2/414 8.6/408 10.1/401 600 479 6.0/372 7.3/367 8.5/362 9.8/356 2000 417 6.5/326 7.7/322 8.9/319 10.1/315 6000 305 5.6/239 6.6/237 7.5/326 8.4/233 20000 228 5.5/180 6.4/179 6.9/178 7.7/177 60000 188 5.5/149 6.1/149 6.7/149 7.2/148 NYP111 80 111.4 20 615 6.7/660 9.2/647 11.2/634 13.6/622 法兰 60 615 6.9/664 9.4/652 11.5/642 13.9/631 200 544 7.1/589 9.3/580 11.0/573 13.2/563 600 479 7.3/521 9.5/514 11.1/508 13.1/502 2000 417 7.7/455 9.7/450 11.0/447 12.7/442 6000 305 6.9/335 8.4/332 9.4/331 10.6/328 20000 228 6.3/251 7.5/250 8.2/249 9.2/248 60000 188 6.2/209 7.1/208 7.6/208 8.5/207 NYP160 100 160 20 600 8.9/930 12.1/916 15.3/902 17.5/888 法兰 60 600 9.4/935 12.6/922 15.8/910 19.0/898 200 550 12.3/866 15.3/859 18.3/852 21.3/845 600 480 10.2/754 12.8/747 15.4/740 18.0/737 2000 355 9.1/560 11.1/556 13/552 15.1/548 6000 319 10.0/505 11.7/502 13.5/500 15.2/497 NYP220 125 220 20 430 8.8/902 11.9/880 15.0/858 18.0/836 法兰 60 430 9.0/909 12.0/890 15.0/871 18.0/852 200 355 8.5/753 11.1/739 13.7/726 16.3/713 600 320 9.4/682 11.8/671 14.1/660 16.5/649 2000 254 9.1/544 11.0/537 13.0/530 15.1/523 6000 244 10.1/483 11.9/478 13.6/473 15.4/468 20000 160 9.1/347 10.5/345 11.9/343 13.3/341 60000 117 8.4/256 9.4/255 10.4/254 11.4/253 NYP320 125 320 20 430 13.0/1306 18.0/1270 22.0/1235 26.0/1200 法兰 60 430 13.0/1316 18.5/1285 22.0/1255 26.5/1225 200 355 11.8/1091 15.5/1068 19.1/1046 22.8/1024 600 320 13.2/987 16.5/968 19.7/950 22.9/932 2000 284 14.2/881 17.4/867 20.6/854 23.8/841 6000 222 13.7/693 16.2/684 18.7/675 21.2/666 20000 168 13.2/529 15.3/525 17.3/522 19.4/519 60000 125 12.0/397 13.7/396 15.3/395 16.9/394 NYP650 150 650 20 315 19.0/1921 26.0/1857 33.0/1794 法兰 60 315 20.0/1940 26.4/1886 33.2/1832 200 284 17.9/1756 24.0/1711 30.4/1666 600 253 17.6/1572 22.7/1534 28.9/1500 2000 196 15.7/1225 20.6/1201 24.5/1176 6000 160 16.0/1008 19.8/993 22.3/978 20000 117 13.6/745 16.5/738 19.2/731 60000 100 15.0/645 17.2/643 19.5/640 NYP727 150 727 20 315 21.5/2135 29.4/2058 37.3/1980 法兰 60 315 22.4/2157 29.8/2090 37.3/2026 200 280 19.6/1928 26.7/1874 33.5/1820 600 245 19.6/1696 25.1/1652 31.2/1611 2000 200 18.7/1394 23.3/1363 28.5/1334 6000 170 19.2/1195 23.3/1175 27.9/1155 20000 125 17.0/888 20.1/878 23.3/868 60000 100 16.8/720 19.5/717 22.3/713 NYP1670 200 1670 20 250 38.0/3852 52.0/3690 66.0/3529 法兰 60 250 40.0/3900 54.0/3763 68.0/3626 200 225 37.5/3535 50.0/3424 62.5/3313 600 195 37.0/3079 48.0/2990 58.6/2900 2000 160 35.0/2547 44.0/2485 53.0/2422 6000 135 34.6/2177 42.0/2138 50.0/2100 20000 112 35.0/1830 41.5/1810 48.0/1790 60000 85 36.0/1405 35.7/1400 40.6/1392